CPW-173Y

 

 

 Pedestrian access control office turnstiles CPW-173Y is comparatively slim in turnstile industry. It is simple and elegant. The housing is made of durable stainless steel & cold rolled sheet. The mechanism modules are imported from international top brands’ DC brushless servo motors and multidimensional servo control technology, so as to make sure the swing gate can move quickly and accurately, stably and quietly, with low-power consumption, energy conservation and environment protection.

 

Application

 

It is suitable for high end indoor occasions such as office buildings, airports, government agencies, schools, hospitals, and leisure venues, etc.

 

 

 

 

 Structure Chart

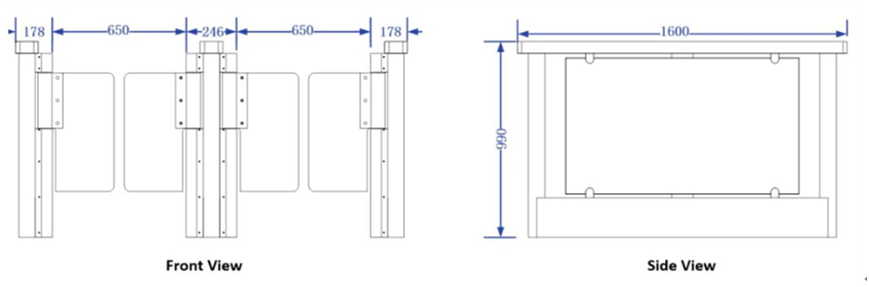
Dimensions (Unit: mm)

 

 

Parameters

Structure Parameters

Housing Material

304 Stainless Steel

Surface Treatment

Brushed

Swing Gate Material

Organic Glass

Technical Parameters

Normal  Passing Speed

30-45 persons/minutedepending on the condition of users

Evacuating Speed

60 persons/minutes((depending on the condition of users

Gate Opening Speed

0.3-0.6 seconds

Gate Opening Angle

±90°

Working Temperature

20~60

Electrical Parameters

Power Supply

100-240VAC50/60Hz

Rated Power

100W

Input / Output Signal

12-channel relay signal output / 8-channel dry contact signal input

Communication Interface

RS485 / RS232TCP/IP Interface (customizable)

Driving Motor

Industrial grade brushless DC motor

Positioning Method

Use the encoder to position the swing gate accurately

Motor Control Mode

Use high-performance DSP chip

 

Product Functions

l  Basic Functions

Ø  Passing mode switching functionThe entry and exit can be set independentlycontrolled mode / free mode / forbidden mode

 

Ø  Automatic reset function: The turnstile will open swing gate after receiving valid opening signal when standby. The swing gate will return to the hindered zero position automatically under the following situation:

1Within the allowed time, pedestrians have been detected to pass through the passageway in specified direction;

2Over the allowed time, there is no people passing through the passageway.

 

Ø  Self-recovery function: The swing gates do not return to the hindered zero position because of human intervention. After revoking human intervention, swing gates automatically return to the hindered zero position.

 

Ø  Automatic adjustment function: When the turnstiles need to re-adjust because of mechanical wear, the main control board can adjust automatically, accurately and conveniently.

 

Ø  Memory function of passing requests: When more than 2 passing signals are given at the same time (including the same direction and opposite direction), the system will remember all the passing requests and finish them one by one. The number can be up to 255.

 

Ø  Passing indication function:

1Direction indicator: The direction indicator is installed on the top of the housing cabinet to indicate the valid passing direction. 

 

2Passage status indicator: It is installed inside the housing side, indicating whether the swing gates can open after receiving the valid signal.

 

Ø  CompatibilityEquipped with the dry contact signal input interface, RS485/RS232 interface, TCP/IP interface (optional), compatible with all kinds of access controllers.

 

l  Security Design

ØØ  Self-check function when power on: The system will self-check routinely and alarm when power on, and intelligently detect the key hardware and function. Find the hidden danger within the shortest time!

 

Ø  Open gate when power off: Adopted with the leading mechanical structure by original creation, the system will automatically unlock the swing gates when power off. The gates can be manually pushed to be open and convenient for evacuation, which meets the fire protection requirement.

 

Ø  Anti-clamping function:

 

 

1Infrared anti-clamping: Install multi-pair of infrared sensors near the anti-clamping area where swing gate is moving. Once any person or object is detected within the anti-clamping area, the swing gate will automatically stop moving. The swing gate will not continue to move until the person or object leaves the anti-clamping area.

 

2Machinery anti-clamping: The swing gate will automatically stop moving when it encounters obstacles; the impulse force is within the safety range when the swing gate is moving.

 

3Electric current detection anti-clamping: If the gate encounters obstacles during its moving, and the system detects the abnormal current, the motor will stop or reversely move to prevent clamping pedestrian.

 

Ø  Over force feedback control functionWhen the gate is locked, it can support the impulse force within the safety range. If the impulse force is over the safety range, the gate can be manually pushed slowly so as to protect the mechanism and pedestrian, and then recovers automatically.

 

Ø  Emergency escape functionEquipped with emergency escape control device, the system can automatically open the gate to evacuate pedestrians conveniently.

 

Ø  Intelligent linkage alarmIllegal traffic events can be linked with other alarm monitoring equipment: such as access control systems, video management systems.

 

Product Customization

l  Customized Functions

Ø  Built-in or external counter

Ø  TCP / IP communication

l  Materials

Ø  The material of housing can be 316 grade stainless steel, and the thickness of stainless steel can be customized.

Ø  The material of swing gate can be tempered glass, acrylic and polycarbonate etc. and the color can be customized.

 

l  Gate open button

Ø  External gate open button.

Ø  Install the gate open button with wireless remote control.

l  System Integration

Ø  Integrate with access control system and built-in reader appointed by customers.

Ø  Integrate with visitor access control system.

Ø  Integrate with ticketing system.

l  Lane width

Ø  The lane width can be custom-made for larger size, and the maximum can be 900mm, but the length might need to be changed according to the lane width.

 

« Notes

1The product design and specifications are subject to change without prior notice.

2Please contact us directly for special features customization.

 

 

 

 

    Keywords :

Message
  • Theme :

Submit
Related Products

Message

Message

Home

Product

E-mail

WhatsApp